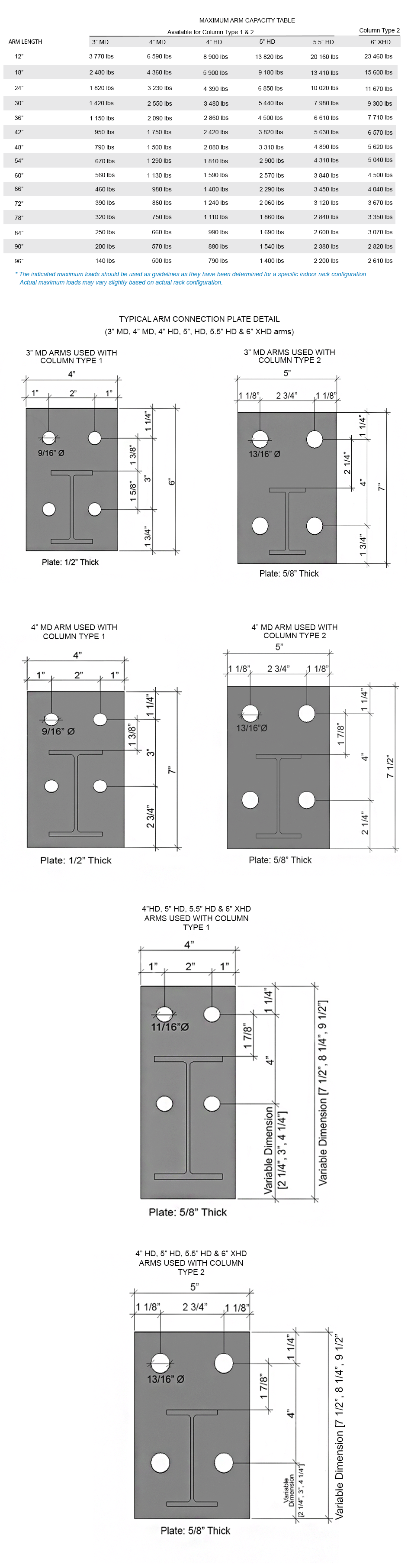
Structural Arms
Structural arms are available in various lengths, which include 12", 18", 24", 30", 36", 42", 48", 54", 60", 72", 78", 84", 90", and 96". The arm plate connection is identified as 3"MD, 4" MD, 4"HD, 5" HD, 5.5" HD, and 6" XHD, which indicates the spacing between each punched bolt hole. The plates are either 1\2" thick or 5\8" thick and have four ø13/16" or ø 1/2" punched holes at each corner. The plate requires 4-ASTM A325 structural bolts specified and tested for this specific purpose. These bolted connections fix the arm to the rack column on one end, leaving it free on the opposing end, thus resulting in a cantilever rack arm. The arms are designed to resist uniformly distributed loads exerted by the product that is supported and shall be manufactured of structural S-sections, W-sections or equivalent structural profiles. The supported load should be centered on the arm and should refrain from exceeding the edge of the arm. The arms are used for interior and exterior purposes. For all applications, the arms are finished with a powder-coated Cogan standard grey paint, which provides ultra-resilient protection.
| Limited Lifetime Warranty |
Structural Arms
Structural arms are available for any required purpose. It is composed of a beam welded to a plate connection and are manufactured angled at an incline of 1.5° or 3° from the horizontal. The number of arms required for a specified column is determined by the client. This will affect the overall design of the cantilever racking system. The arms are classified as either MD or HD which indicates the load bearing capabilities of the arms. MD implies light duty and HD means heavy duty. When configuring the number of arms required per column it is important to take into consideration two factors; the maximum capacity per column and the maximum capacity per arm. The total combined weight capacity of the arm should not exceed the maximum capacity of each column.
- Click here to download Printer Friendly Summary (PDF).
© 2025 Cogan Wire and Metal Products Ltd., all rights reserved.










