Coat Rod
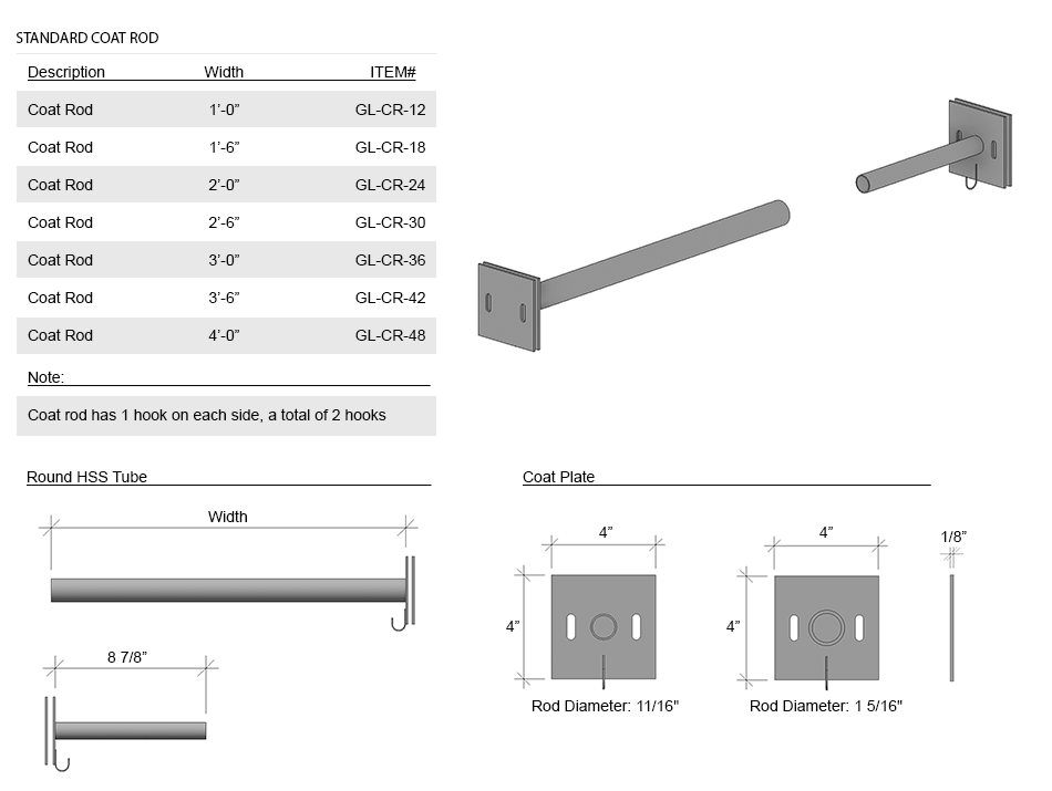
Coat rods come with one hook on each side,for a total of two hooks.
| Limited Lifetime Warranty |
Coat Rod
Refer to the installation manual for reference. See size tab for more information.
- Click here to download Printer Friendly Summary (PDF).
Please consult the table below for a complete list of dimensions.
© 2025 Cogan Wire and Metal Products Ltd., all rights reserved.






